simple website templates

TELECOM

Projetos - Laudos - Engenharia - Aquisição e Licenciamento 

Serviços Telecom

Projetos e Laudos Técnicos

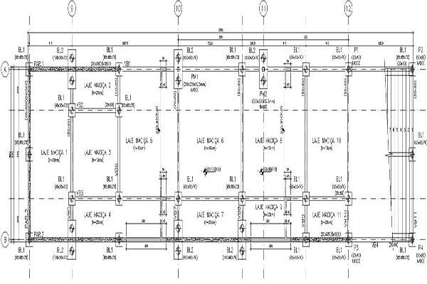
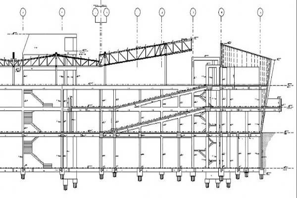
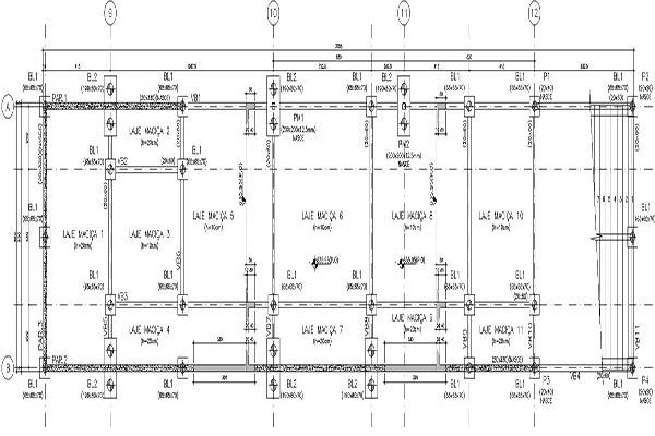
Através de uma equipe altamente capacitada, realizamos vistorias técnicas para elaboração de diversos tipos de projetos e laudos. Desenvolvemos projetos estruturais, de fundações e de estruturas verticais, tanto em concreto como metálicos, incluindo também projetos de reforço estrutural de estruturas existentes

Atividades Executadas

 Vistorias | TSS
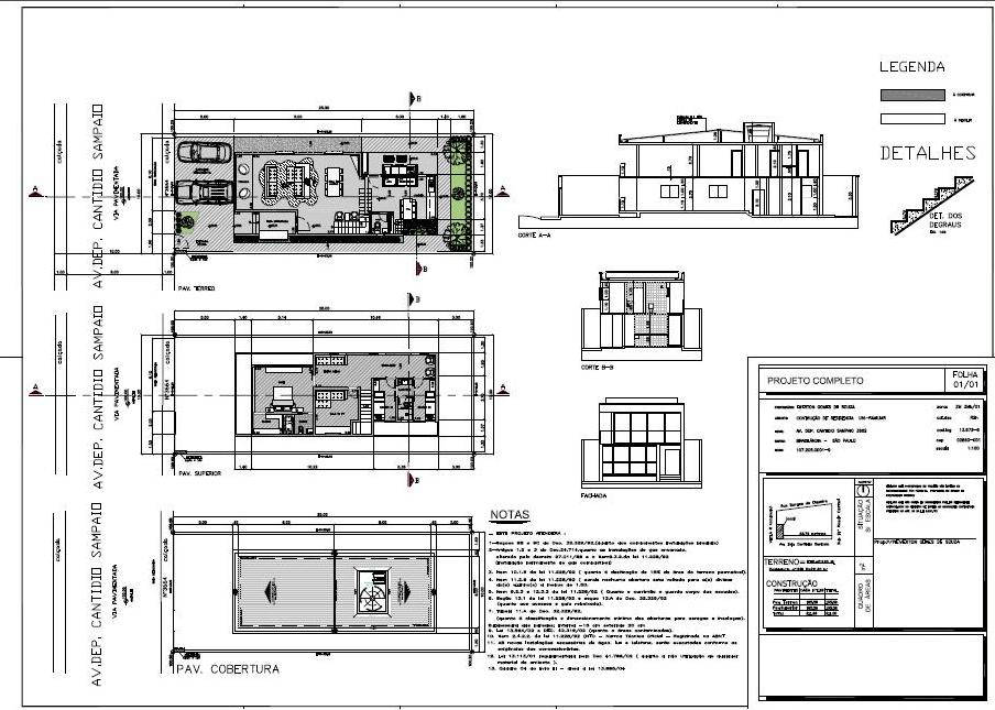
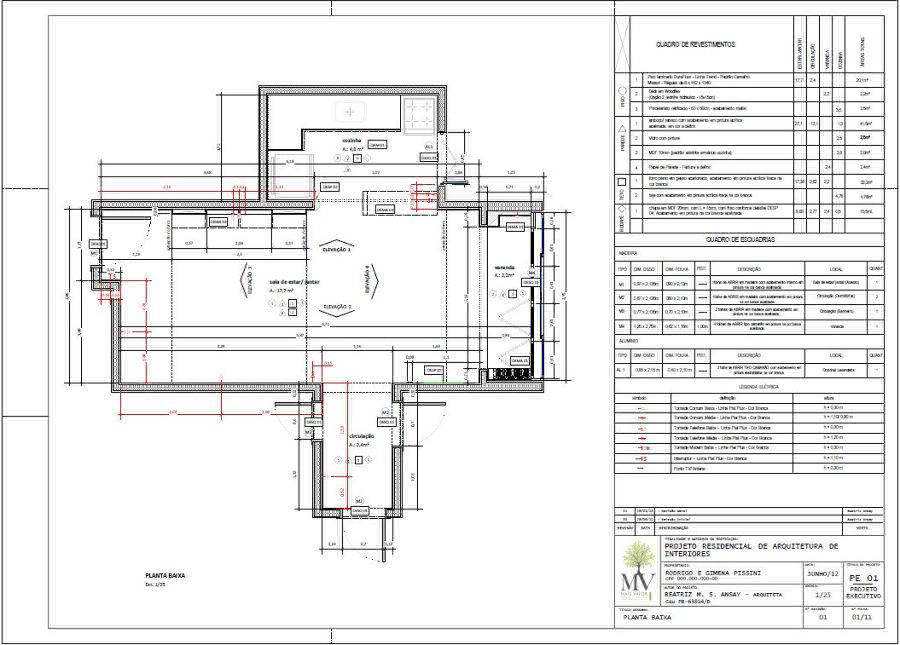
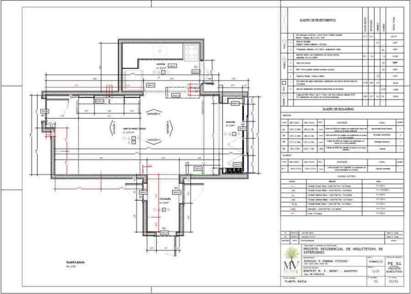
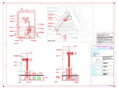
Projetos Executivos (Civil, elétrica, aterramento e estrutural)
Projetos para Reforços de Estrutura Vertical e Fundações
- Mapeamento e prospecção de fundação
- Mapeamento de estrutura
Laudos estruturais, Laudos de Aterramento e SPDA, Laudos de Verticalidade
Processos para emissão de CLCB e AVCB junto ao Corpo de Bombeiros
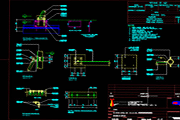
Elaboramos também soluções e dimensionamento de projetos de estruturas metálicas para diversas aplicações em Telecomunicações, como por exemplo: Skid metálico (bases de apoio para equipamentos), mastros metálicos, suporte para antenas, plataformas de trabalho, estruturas de guarda-corpo, etc...
Implementação de infra estrutura para telecomunicações -De posse dos projetos executivos (fundação, civil, elétrico, aterramento, estrutura) temos condições executar toda e qualquer infra estrutura para telecomunicações.
Temos experiência na execução de vias de acesso e urbanização de sites, melhorias e extensão de rede elétrica, todo tipo de fundações, e reforços de estruturas existes, além de aterramentos e infra de elétrica e fibra ótica.

Aquisicão e Licenciamento

Aquisição e Licenciamento

Atividades Executadas

- Consulta à legislação vigente, Municipal, Estadual e Federal;
- Busca de candidatos viáveis priorizando a área de busca indicada por RF;
- Emissão de relatórios (SAR’s);
- Croquis de localização e situação das áreas para instalação dos Sites em Auto CAD;
- Análise e apresentação das documentações dos candidatos;
- Negociação e assinatura do Contrato;
- Deferimento de Alvará de Construção;
- Deferimento de Habite-se. 

Implementação de infra estrutura para telecomunicações

Implementação de Infra Estrutura para Telecomunicações

De posse dos projetos executivos (fundação, civil, elétrico, aterramento, estrutura) temos condições executar toda e qualquer infra estrutura para telecomunicações.
Temos experiência na execução de vias de acesso e urbanização de sites, melhorias e extensão de rede elétrica, todo tipo de fundações, e reforços de estruturas existes, além de aterramentos e infra de elétrica e fibra ótica.

Atividades Executadas 

 Execução de Obras
Infraestrutura para Telecomunicações
- Execução de Site compartilhado e New Site – Greenfield (GF)
- Execução de Site compartilhado e New Site – Rooftop (RT)
- Reforço estrutural de Fundação
- Reforço estrutural de Estruturas Verticais
- Instalação de suportes para antenas
- Instalação de esteiramento horizontal e vertical para cabos das antenas
- Muros de arrimo e sistemas de contenção
Impermeabilização
Execução de SPDA e Aterramentos
Vistorias | TSS
Projetos Executivos (Civil, elétrica, aterramento e estrutural)
Projetos para Reforços de Estrutura Vertical e Fundações
Mapeamento e prospecção de fundação
Mapeamento de estrutura

Contato

Endereço:

Rua Gilda, 187 - São Paulo - Brasil

Telefone:

(11) 2093-3068

E-mail:

contato@storresprojetos.com.br